Neo Plank Expo (Нэо Планк Экспо)
Преимущества:
- долговечный, срок службы не менее 22 лет, благодаря толщине стенки стальной трубы в 2 мм.
- экономия средств, подключение Н-образного узла (Multiflex) к конвектору без дополнительных переходников
- меньше работы на объекте, встроенный термостатический клапан Tepla собственного производства
Подробности
- долговечный, срок службы не менее 22 лет, благодаря толщине стенки стальной трубы в 2 мм.
- экономия средств, подключение Н-образного узла (Multiflex) к конвектору без дополнительных переходников
- меньше работы на объекте, встроенный термостатический клапан Tepla собственного производства
Конвектор-скамья Tepla Neo Plank Expo (Нэо Планк Экспо) – это элегантное и функциональное сочетание отопительного прибора и удобной скамьи для отдыха. Подходит для торговых центров, холлов, вестибюлей, аэропортов, спортивных комплексов и других общественных пространств.
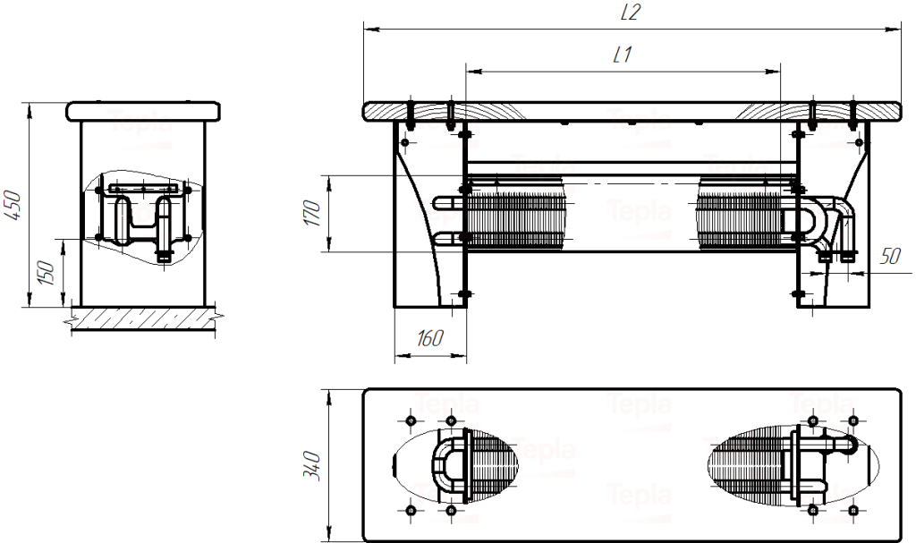
Длина скамьи соответствует длине конвектора. Глубина конвекторов Neo Plank Expo (Нэо Планк Экспо) 340 мм и 500 мм, высота 450 мм.
На скамье комфортно разместятся 2–3 человека, а максимально допустимая распределенная нагрузка зависит от длины: для моделей от 1200 до 1600 мм включительно она составляет 240 кг, для моделей длиной 1800 мм — 360 кг.
В качестве теплоносителя может использоваться специально подготовленная вода или незамерзающая жидкость, согласно приложению Е СП 124.13330.2012.
Виды стальных конвекторов линейки Neo Plank Expo (Нэо Планк Экспо):
Neo Plank Expo (Нэо Планк Экспо) 450(В) х 340(Г) - номинальный тепловой поток 1.434 - 2.531 кВт.
Neo Plank Expo (Нэо Планк Экспо) 450(В) х 500(Г) - номинальный тепловой поток 2.046 - 3.143 кВт.
Neo Plank Expo (Нэо Планк Экспо) 450(В) х 500(Г) - номинальный тепловой поток 2.046 - 3.143 кВт.
Базовой комплект поставки:
- исполнение: концевое
- тип подключения: нижнее (L)
- сторона вывода патрубков: лев / прав
- присоединение к трубопроводу: резьбовое НР ¾
- корпус - порошковая окраска по RAL 9016 (белый глянцевый)
- теплопакет - порошковая окраска по RAL 9005 (черный муар)
- декоративная панель - сиденье из массива дерева, обладающая повышенной износостойкостью, покрытая износостойким лаком (ясень, дуб)
- технический паспорт, инструкция по монтажу и эксплуатации
Дополнительная комплектация:
- тип подключения: боковое
- присоединение к трубопроводу: резьбовое НР ¾ Евро (Евроконус); НР ½; ВР ½; ВР ¾; сварка
- встроенный воздухоотводчик
- встроенный термостатический клапан Tepla для однотрубной или двухтрубной системы отопления с возможностью преднастройки и встроенным в корпус клапана воздухоотводчиком (T1/Т2: Пр)
- термостатический элемент
- Н-образный узел (Multiflex)
- окраска по RAL заказчика
| Артикул |
Тепловой поток |
Длина кожуха |
Масса справочная |
|---|---|---|---|
| кВт | мм | кг | |
| TPLNPE1434T2L | 1.434 | 1200 | 39 |
| TPLNPE1804T2L | 1.804 | 1400 | 46 |
| TPLNPE2173T2L | 2.173 | 1600 | 52 |
| TPLNPE2531T2L | 2.531 | 1800 | 59 |

| Артикул |
Тепловой поток |
Длина кожуха |
Масса справочная |
|---|---|---|---|
| кВт | мм | кг | |
| TPLNPE2046T2L | 2.046 | 1200 | 58 |
| TPLNPE2416T2L | 2.416 | 1400 | 67 |
| TPLNPE2785T2L | 2.785 | 1600 | 76 |
| TPLNPE3143T2L | 3.143 | 1800 | 86 |

Высота, мм
450
Глубина, мм
340, 500
Длина, мм
1200 - 1800
Межосевое расстояние патрубков, мм
50, 80
Тип подключения
нижнее, боковое
Рабочее давление, МПа
1
Испытательное давление, МПа
1,5
Температура теплоносителя, °С
150
Гарантийный срок, лет
5
Фотогалерея
1/3
—
